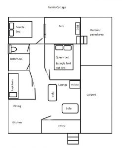
Family Cottage
- 3 Bedroom – Sleeps 7
- Master bedroom – Queen bed & TV
- Second bedroom – Double bed
- Third bedroom – Bunk beds
- Also cottage contains single foldaway bed
- Fully reverse cycle air conditioning
- Laundry room with washing machine and clothes dryer
- Full equipped kitchen and dining area
- Separate shower & toilet
- TV/DVD player in living room
- Full cooking facilities and microwave
- Veranda for BBQ alfresco dining and BBQ




